Projekt domu Lisek dr-T
- Dostępny w 24H
- Bezpłatna wysyłka
- Zwrot/wymiana 14 dni
- Drukuj kartę projektu
-
Dodaj do ulubionych
- Porównaj ulubione
Dane techniczne
- powierzchnia użytkowa 85.76 m²
- powierzchnia zabudowy 69.76 m²
- powierzchnia dachu 127.37 m²
- kubatura 288.00 m³
- wysokość 7.74 m
- EP 65.49 kWh/(m²rok)
Technologia i rodzaj zabudowy
| zabudowa: | jednorodzinny z użytkowym poddaszem |
| ściany: | drewniane, szkieletowe |
| stropy: | drewniane |
| dach: | dachówka ceramiczna, kąt nachylenia 43° |
| ogrzewanie: | gazowe |
| stolarka: | okna dachowe marki Velux |
Rysunki szczegółowe
Rysunki zostaną przesłane na podany adres e-mail.
Adaptacja projektu
wraz z projektem zagospodarowania działki
W celu uzyskania pozwolenia na budowę należy dokonać adaptacji projektu do warunków miejscowych oraz uzupełnić go o projekt zagospodarowania działki.
Jeżeli jesteś zainteresowany adaptacją projektu w naszym biurze wyślij zapytanie.
Orientacyjne koszty budowy
Bezpłatny PAKIET DODATKÓW
Budowa domu - bezpłatna wycena firmy Wolf Haus
Bezpłatna wycena poszczególnych etapów budowy



Opis do projektu Lisek dr-T
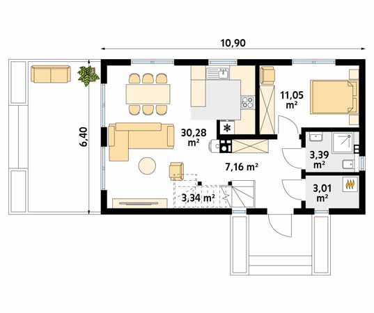
Lisek dr-T to projektu domu z użytkowym poddaszem o powierzchni użytkowej 86 m2. Projekt posiada prosta bryłę zaprojektowana na rzucie prostokąta i przykrytą dwuspadowym dachem. Na dachu pojawiła się dachówka ceramiczna w ceglastym kolorze. Szerokość domu Listek dr-T to zaledwie 6,4 m dzięki czemu bez problemu można go usytuować na wąskiej działce. Projekt utrzymano w tradycyjnym tylu. Na elewacji pojawił się biały tynk, który zestawiono z drewnianą szalówką. Wiejskiego charakteru nadają również drewniane zdobienia przy oknach oraz drewniane balustrady.
Przemyślany układ funkcjonalny
Układ funkcjonalny domu rozłożono na dwóch kondygnacjach. Parter to otwarta część dzienna z licznymi przeszkleniami. Tworzą ją wygodny salon, jadalnia oraz funkcjonalna kuchnia. Duże okna, które pojawiły się w tej części domu nie tylko otwierają wnętrze na ogród, ale również wprowadzają dużo naturalnego światła. Program funkcjonalny parteru dopełnia dodatkowy pokój, przy którym pojawiła się duża, ustawa łazienka. Pokój stanowi sypialnie rodziców, idealnie sprawdzi się również jako pokój dla gości. W projekcie przewidziano ogrzewanie gazowe. Na poddaszu zaprojektowano dwie wygodne sypialnie oraz rodzinną łazienkę. Większa sypialnia bez problemu pomieści dwa łóżka, dzięki czemu w domu komfort odnajdzie nawet 5 – osobowa rodzina. Dodatkową zaletą projektu jest antresola.
Niesłabnąca popularność domów drewnianych
Projekt Lisek dr-T zaprojektowany został w technologii szkieletu drewnianego. Ściany w szkielecie drewnianym technologia, która cieszy się niesłabnącą popularnością. Ten typ budynków realizuje się szybko i łatwo. Konstrukcja polega na użyciu drewnianych elementów stanowiących szkielet, który jest wypełniony materiałami izolacyjnymi i okładziną zewnętrzna. Taki rodzaj budownictwa jest ceniony ze względu na swoją ekologiczność oraz energooszczędność. W porównaniu do domów murowanych, domy ze ścianami w szkielecie drewnianym wymagają mniejszych nakładów energii i surowców.
Projekt domu na zgłoszenie
Projekt Lisek dr-T posiada powierzchnię zabudowy w wysokości 69 m2, co daje możliwość jego realizacji na tzw. zgłoszenie. Są to założenia wynikające z programu rządowego Nowy Polski Ład, które obwiązują od stycznia 2022 roku. Wynika z nich, iż projekty domów o powierzchni zabudowy do 70 m2 można zrealizować bez pozwolenia na budowę, bez kierownika budowy czy dziennika budowy. Podstawowym założeniem programu jest przeznaczenie inwestycji na zaspokojenie własnych potrzeb mieszkaniowych. Nowe przepisy określają również, iż nowo budowane domy do 70 m2 mają być budynkami wolnostojącymi o nie więcej niż dwóch kondygnacjach, których obszar oddziaływania w całości mieści się na działce lub działkach na których będzie realizowana dana inwestycja.
Okna dachowe marki Velux
Pomieszczenia na poddaszu mają wyjątkowy klimat i niewiele potrzeba, aby zyskały niepowtarzalny charakter. W projekcie Lisek dr-T zostały zastosowane okna dachowe marki Velux. W swojej ofercie posiadają duży wybór produktów, dzięki czemu z łatwością można wybrać modele najbardziej pasujące do wnętrza domu i osobistych potrzeb mieszkańców. Okna dachowe spełniają jednak nie tylko funkcję dekoracyjną, ale również praktyczną. Energooszczędne, dwukomorowe okna GLL i GLU zapewniają doskonałe parametry izolacyjne i komfort użytkowania. Duża powierzchnia szyby zapewnia dobry dostęp światła i zyski ciepła z energii słonecznej w okresie grzewczym. Wszystkie okna dachowe marki Velux posiadają 4 najwyższą klasę szczelności.