Projekt domu Lisek 2
- Dostępny w 24H
- Bezpłatna wysyłka
- Zwrot/wymiana 14 dni
- Drukuj kartę projektu
-
Dodaj do ulubionych
- Porównaj ulubione
Dane techniczne
- powierzchnia użytkowa 89.58 m²
- powierzchnia zabudowy 69.86 m²
- powierzchnia dachu 94.39 m²
- kubatura 433.43 m³
- wysokość 7.82 m
- EP 65.93 kWh/(m²rok)
Technologia i rodzaj zabudowy
| zabudowa: | jednorodzinny z użytkowym poddaszem |
| ściany: | 2-warstwowe - pustak ceramiczny + styropian, na poddaszu szkielet drewniany |
| stropy: | belki drewniane + wełna mineralna |
| dach: | dachówka ceramiczna, kąt nachylenia 43° |
| ogrzewanie: | pompa ciepła, podłogowe |
| stolarka: | okna dachowe marki Velux |
Rysunki szczegółowe
Rysunki zostaną przesłane na podany adres e-mail.
Adaptacja projektu
wraz z projektem zagospodarowania działki
W celu uzyskania pozwolenia na budowę należy dokonać adaptacji projektu do warunków miejscowych oraz uzupełnić go o projekt zagospodarowania działki.
Jeżeli jesteś zainteresowany adaptacją projektu w naszym biurze wyślij zapytanie.
Bądź pierwszą osobą, która zamówi kosztorys do projektu Lisek 2.
Zadzwoń: 577 007 206
Cena kosztorysu dla projektu Lisek 2 wynosi 600 zł.
Ten dodatkowy koszt z pewnością znacząco nie nadszarpnie budżetu inwestycji, a pozwoli precyzyjnie wycenić poszczególne etapy prac budowlanych oraz będzie przydatne w negocjacjach z wykonawcą. Kosztorys może być również podstawą do ubiegania się o kredyt hipoteczny. Narzędzie to pozwala stworzyć harmonogram prac ściśle powiązany z własnymi możliwościami finansowymi. Zaletą kosztorysu w wersji elektronicznej jest to, że pozwala na wprowadzanie pewnych zmian i dostosowanie kosztów do własnych potrzeb, daje również możliwość skorygowania cen materiałów i robocizny w zależności od miejsca budowy.
Kosztorys budowlany zawiera:- tabelę elementów, która przedstawia poszczególne etapy budowy wraz z ich kosztami,
- przedmiar, który obejmuje zestawienie wszystkich prac związanych z budową wraz z kosztami i ilościami,
- zestawienie materiałów potrzebnych do budowy,
- zestawienie robocizny, które obejmuje wynagrodzenie wszystkich robotników wraz z kosztami ich pracy,
- zestawienie sprzętu, które obejmuje wszystkie maszyny budowlane biorące udział przy budowie domu, wraz z kosztami ich wynajmu oraz czasu pracy.
Kosztorys budowlany uwzględnia wyłącznie część budowlaną robót – bez instalacji. Instalacje zostały uwzględnione jedynie wskaźnikowo w tabelach elementów zapisanych w formacie programu Excel.
Bezpłatny PAKIET DODATKÓW
Pobierz wycenę w 3 minuty
Budowa domu - bezpłatna wycena firmy Wolf Haus
Bezpłatna wycena poszczególnych etapów budowy



Opis do projektu Lisek 2
Lisek 2 to projekt domu o prostej bryle przykrytej dwuspadowym dachem. To projekt nie tylko tani i łatwy w budowie, ale również niezwykle funkcjonalny. Bryła budynku jest prostokątna, co pozwala na optymalne wykorzystanie przestrzeni wewnątrz domu, co jest szczególnie ważne w przypadku niewielkich działek. Dom posiada wygodne i dobrze doświetlone wnętrze. Zwarta bryła zajmuje mniej miejsca na działce dzięki czemu dom idealnie wpisze się zarówno w małe, jak i wąskie działki. Prosta bryła budynku pozwala również na łatwe zagospodarowanie terenu wokół domu. W przypadku, gdy działka jest niewielka, prostokątny kształt budynku pozwala na zaplanowanie ogrodu lub tarasu.
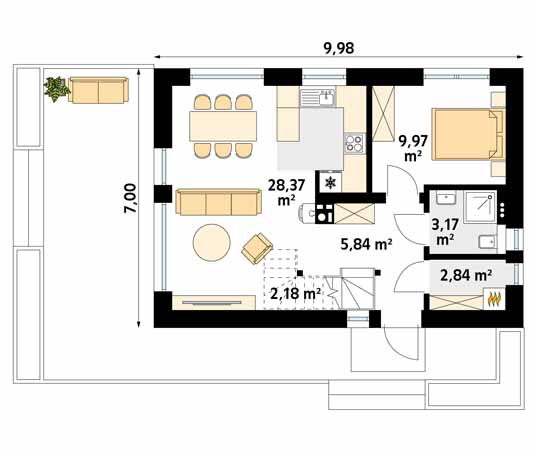
Przemyślany układ funkcjonalny
Układ funkcjonalny domu zaplanowano na dwóch kondygnacjach. Parter to przede wszystkim część dzienna. Zaprojektowano tu otwarta przestrzeń z licznymi przeszkleniami. Autor projektu przewidział tu salon z wygodna kanapą, jadalnię z miejscem na duży stół oraz otwartą kuchnię. Układ funkcjonalny parteru dopełnia dodatkowy pokój, łazienka oraz duże pomieszczenie gospodarcze. Dodatkowy pokój na parterze idealnie sprawdzi się jako sypialnia dla gospodarzy, pokój dla gości lub miejsce do pracy bądź nauki. Poddasze to prywatna przestrzeń mieszkańców. Zaprojektowano tu trzy wygodne sypialnie oraz rodzinną łazienkę. Jedna z sypialni posiada prywatną garderobę co podnosi komfort jej użytkowania. Łazienka jest na tyle, że zmieścił się tu zarówno prysznic, jak i wanna.
Taras przy domu to same zalety
Niewątpliwą zaletą projektu jest duży taras zaprojektowany w kształcie litery L. Taras okala dom z dwóch stron, dzięki czemu jest bardziej funkcjonalny. Posiadanie tarasu przy domu z całą pewnością ma wiele zalet. To przede wszystkim wypoczynek na świeżym powietrzu. Taras to idealne miejsce do relaksu, czytania książki czy spotkań z przyjaciółmi i rodziną. W czasie letnim taras stanowi powiększenie przestrzeni mieszkalnej, dzięki czemu staje się idealnym miejscem do organizowania przyjęć i spotkań. Każdy taras można oczywiście zadaszyć. Pozwala on wówczas na spędzanie czasu na świeżym powietrzu niezależnie od pogody. Chroni przed nadmiernym słońcem w upalne dni oraz opadami deszczu.
Okna dachowe marki Velux
Pomieszczenia na poddaszu mają wyjątkowy klimat i niewiele potrzeba, aby zyskały niepowtarzalny charakter. W projekcie Lisek 2 zostały zastosowane okna dachowe marki Velux. W swojej ofercie posiadają duży wybór produktów, dzięki czemu z łatwością można wybrać modele najbardziej pasujące do wnętrza domu i osobistych potrzeb mieszkańców. Okna dachowe spełniają jednak nie tylko funkcję dekoracyjną, ale również praktyczną. Energooszczędne, dwukomorowe okna GLL i GLU zapewniają doskonałe parametry izolacyjne i komfort użytkowania. Duża powierzchnia szyby zapewnia dobry dostęp światła i zyski ciepła z energii słonecznej w okresie grzewczym. Wszystkie okna dachowe marki Velux posiadają 4 najwyższą klasę szczelności.