Projekt Cykada 3
- Projekt na zapytanie
- Bezpłatna wysyłka
- Zwrot/wymiana 14 dni
- Artykuły o projekcie >>
- Drukuj kartę projektu
-
Dodaj do ulubionych
- Porównaj ulubione
Z uwagi na konieczną aktualizację dokumentacji technicznej do WT2021 i Eurokodów prezentowane na stronie dane techniczne i ceny mogą ulec zmianie.
Dane techniczne
- powierzchnia użytkowa 1120.20 m²
- powierzchnia zabudowy 869.50 m²
- powierzchnia dachu 1420.00 m²
- kubatura 5400.00 m³
- wysokość 9.79 m
Technologia i rodzaj zabudowy
| zabudowa: | pensjonat |
| ściany: | 3-warstwowe - pustak ceramiczny |
| stropy: | TERIVA |
| dach: | dachówka, kąt nachylenia 30° i 35° |
| ogrzewanie: | na paliwo stałe |
Rysunki szczegółowe
Rysunki zostaną przesłane na podany adres e-mail.
Adaptacja projektu
wraz z projektem zagospodarowania działki
W celu uzyskania pozwolenia na budowę należy dokonać adaptacji projektu do warunków miejscowych oraz uzupełnić go o projekt zagospodarowania działki.
Jeżeli jesteś zainteresowany adaptacją projektu w naszym biurze wyślij zapytanie.
Bądź pierwszą osobą, która zamówi kosztorys do projektu Cykada 3.
Zadzwoń: 577 007 206
Ten dodatkowy koszt z pewnością znacząco nie nadszarpnie budżetu inwestycji, a pozwoli precyzyjnie wycenić poszczególne etapy prac budowlanych oraz będzie przydatne w negocjacjach z wykonawcą. Kosztorys może być również podstawą do ubiegania się o kredyt hipoteczny. Narzędzie to pozwala stworzyć harmonogram prac ściśle powiązany z własnymi możliwościami finansowymi. Zaletą kosztorysu w wersji elektronicznej jest to, że pozwala na wprowadzanie pewnych zmian i dostosowanie kosztów do własnych potrzeb, daje również możliwość skorygowania cen materiałów i robocizny w zależności od miejsca budowy.
Kosztorys budowlany zawiera:- tabelę elementów, która przedstawia poszczególne etapy budowy wraz z ich kosztami,
- przedmiar, który obejmuje zestawienie wszystkich prac związanych z budową wraz z kosztami i ilościami,
- zestawienie materiałów potrzebnych do budowy,
- zestawienie robocizny, które obejmuje wynagrodzenie wszystkich robotników wraz z kosztami ich pracy,
- zestawienie sprzętu, które obejmuje wszystkie maszyny budowlane biorące udział przy budowie domu, wraz z kosztami ich wynajmu oraz czasu pracy.
Kosztorys budowlany uwzględnia wyłącznie część budowlaną robót – bez instalacji. Instalacje zostały uwzględnione jedynie wskaźnikowo w tabelach elementów zapisanych w formacie programu Excel.
Budowa domu - bezpłatna wycena firmy Wolf Haus
Bezpłatna wycena poszczególnych etapów budowy



Opis do projektu Cykada 3
Cykada 3 to bardzo przestronny projekt pensjonatu, mogący pełnić rolę zarówno obiektu gastronomicznego, hotelu, jak również domu weselnego. Rozłożysta bryła łączy w sobie dwuspadowy dach, liczne lukarny oraz kolumny, na których wsparto zadaszenie wejścia głównego oraz wyjścia z sali bankietowej. Projekt pensjonatu Cykada 3 doskonale wpisze się w każdy krajobraz, zarówno miejski, jak i wiejski. Charakter budynku można dopasować do miejsca, w którym będzie realizowany, poprzez dobór okładzin elewacyjnych, które mogą zupełnie odmienić charakter budynku.
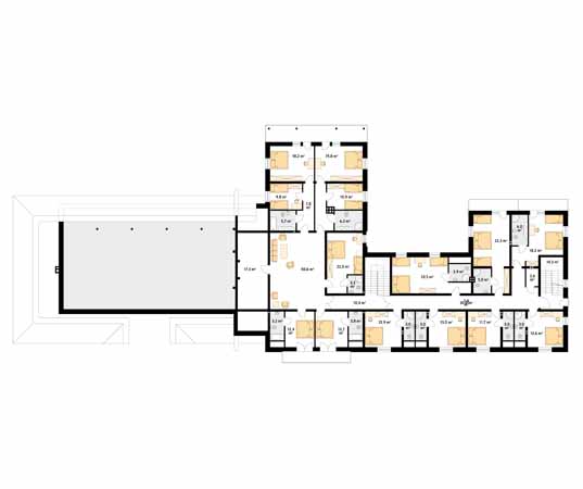
Czytelny układ funkcjonalny
Układ funkcjonalny budynku został podzielony pomiędzy dwiema kondygnacjami. Na parterze zaprojektowano część restauracyjną obiektu, a strefę z pokojami noclegowymi rozłożono pomiędzy piętrami. Na parterze znalazło się 7 pokoi do wynajęcia, a pozostałe 14 pokoi ulokowano na poddaszu. Goście do wyboru mają pojedyncze pokoje lub apartamenty dwupokojowe. Wszystkie pokoje posiadają osobne łazienki i są doskonale doświetlone naturalnym światłem. Na poddaszu znajduje się również holl z kącikiem wypoczynkowym oraz duże pomieszczenie gospodarcze, które można wykorzystać według własnego uznania.
Duża sala bankietowa
Cała cześć rekreacyjna została zaprojektowana na poziomie parteru. Znalazła się tu duża sala bankietowa/restauracja o powierzchni prawie 210 m2. Tuż obok sali bankietowej zaproponowano mniejszą salę z barem umiejscowionym w narożu oraz dodatkowymi stolikami z krzesłami. Tuż obok sali wygospodarowano również miejsce na kuchnię z zapleczem umożliwiające poprawne działanie restauracji. Na parterze znalazł się również przestronny hol z kącikiem rekreacyjnym, w którym ustawiono kanapy, szatnia oraz toalety dla gości. Sala rekreacyjna z powodzeniem może służyć jako restauracja dla gości, ale również może być wykorzystywana jako miejsce na imprezy okolicznościowe, typu wesele.
Niezwykła popularność projektów pensjonatów z serii Cykada
Projekt pensjonatu Cykada 3 jest już trzecią wersją projektów z tej serii. Dwie pierwsze wersje doczekały się mnóstwa realizacji w całej Polsce. Projektując trzecią wersję, powierzchnia użytkowa została zwiększona dwukrotnie. Zależy nam na tym, aby nasza oferta projektów pensjonatów była bardzo zróżnicowana, pod względem wielkości, liczby pokoi oraz zaplecza gastronomicznego i rozrywkowego.

nr.tel.519496822
mozesz podać do sibie jakiś kontakt ?
Ja
Czy ktoś realizuje lub budował ten projekt ?