Projekt domu Skrzat 3

Autor projektu arch. Tomasz Sobieszuk
Projekt domu
Skrzat 3
3 300 zł 1 650 zł
  • Dostępny w 5 dni
  • Bezpłatna wysyłka
  • Zwrot/wymiana 14 dni

Porozmawiaj o projekcie

wyślij pytanie
-50%

PROJEKT W SPECJALNEJ CENIE
Prezentowany projekt na skutek ciągle zmieniających się warunków technicznych wymaga nieco więcej nakładu pracy przy adaptacji do działki. Polega to głównie na pogrubieniu izolacji cieplnej budynku oraz częściowym przeredagowaniu opisu. Projekt wciąż cieszy się zainteresowaniem dlatego jest dostępny w specjalnej cenie.

Dane techniczne

  • powierzchnia użytkowa 109.50 m²
  • powierzchnia zabudowy 136.20 m²
  • powierzchnia dachu 206.00 m²
  • kubatura 478.00 m³
  • wysokość 6.72 m
  • min. gabaryty działki 18.35 × 25.65 m
  • EP 152.36 kWh/(m²rok)

Technologia i rodzaj zabudowy

ściany: 2-warstwowe - bloczek z betonu komórkowego lub keramzytobetonu + styropian
stropy: żelbetowe, wylewane
dach: blachodachówka, kąt nachylenia 30°
ogrzewanie:

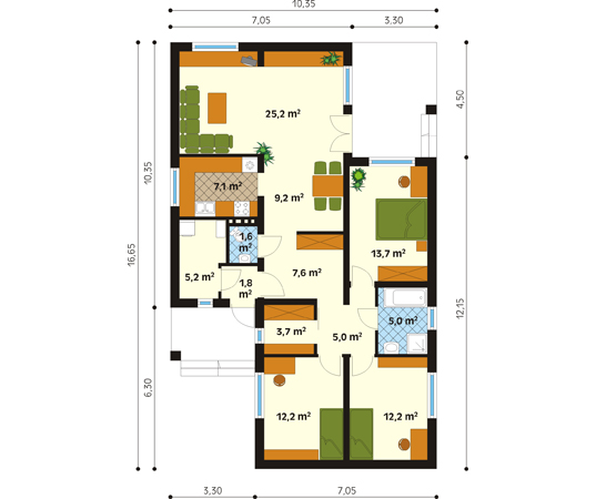
Parter

Projekt domu Skrzat 3 - rzut parteru

Usytuowanie na działce:

Projekt domu Skrzat 3 - usytuowanie na działce
pobierz rzut 1:500
rysunki szczegółowe ikona

Rysunki szczegółowe

Jeśli chcesz otrzymać bezpłatne rysunki szczegółowe tego projektu, wypełnij formularz.
Rysunki zostaną przesłane na podany adres e-mail.
Jeśli jesteś naszym Partnerem i chcesz pobrać rysunki szczegółowe - kliknij tutaj »
Pobierz bezpłatnie
radaptacja projektu ikona

Adaptacja projektu
wraz z projektem zagospodarowania działki

W celu uzyskania pozwolenia na budowę należy dokonać adaptacji projektu do warunków miejscowych oraz uzupełnić go o projekt zagospodarowania działki.


Jeżeli jesteś zainteresowany adaptacją projektu w naszym biurze wyślij zapytanie.

Wyślij pytanie
koszty budowy ikona

Orientacyjne koszty budowy

Poziom cen netto: Sekocenbud III kw 2011, dostawcy, producenci
8%
69%
23%
stolarka okienna i drzwiowa
8 235 zł
stan surowy otwarty
(ściany konstrukcyjne i działowe, konstrukcja dachu z pokryciem)
73 022 zł
stan zerowy
(fundamenty i ściany fundamentowe)
24 891 zł
∑ =
stan surowy zamknięty
(bez instalacji)
106 147 zł
Pobierz szacunkowe koszty budowy
ZOBACZ ZESTAWIENIE MATERIAŁÓW

Bezpłatny PAKIET DODATKÓW

dodatek Rzut w skali 1:500
Rzut w skali 1:500
pobierz
dodatek Charakterystyka energetyczna
Charakterystyka energetyczna
dodatek Zgoda na zmiany
Zgoda na zmiany
dodatek Dziennik budowy
Dziennik budowy
dodatek BIOZ
BIOZ

Dodatki w DOBREJ CENIE

Zamów razem z projektem
dodatek Kosztorys budowlany
Kosztorys budowlany
300
dodatek Dodatkowy egzemplarz projektu
Dodatkowy egzemplarz projektu
990
dodatek Elektroniczna wersja projektu
Elektroniczna wersja projektu
495
dodatek Schemat szamba
Schemat szamba
70zł 60
logo Wolf Haus

Budowa domu - bezpłatna wycena firmy Wolf Haus

Zapraszamy Państwa do wypełnienia poniższego formularza. Dzięki niemu przygotujemy Państwu pełną ofertę na budowę wymarzonego domu.
Bezpłatna wycena

Bezpłatna wycena poszczególnych etapów budowy

System grzewczy
grafika Viessmann
wypełnij
Więźba dachowa
grafika Mitek
wypełnij
Zmiany w projekcie
grafika Mtmstyl
wypełnij

Opis do projektu Skrzat 3

Jednorodzinny dom wolnostojący, parterowy, niepodpiwniczony.Niewielki i niedrogi, prosty w budowie.Wygodny dom dla 4-osobowej rodziny.

Projekty podobne do projektu Skrzat 3

Komentarze o projekcie

  • + Dodaj zdjęcia
  • Chcę otrzymywać prywatne wiadomości
  • Realizując obowiązek Administratora określony w treści art. 13 Rozporządzenia Parlamentu Europejskiego i Rady (UE) 2016/679 z dnia 27 kwietnia 2016 r. w sprawie ochrony osób fizycznych w związku z przetwarzaniem danych osobowych i w sprawie swobodnego przepływu takich danych oraz uchylenia Dyrektywy 95/46/WE (ogólne rozporządzenie o ochronie danych, RODO) (Dz.Urz.UE.L Nr 119, str. 1, ze zm.), informuję iż: rozwiń

arch. Elżbieta Wysocka MTM Styl

Witam, tak,w projekcie znajduje się pod oknem, przez przeoczenie nie znalazł się na rzutach prezentowanych na naszej stronie internetowej.

Katarzyna E-S

Czy w łazience nie jest zaprojektowany klozet?

arch. Elżbieta Wysocka MTM Styl

Witam, wystająca ze ściany z oknem i szafkami w kierunku salonu krótka ściana spełnia zadanie konstrukcyjne-opiera się na niej podciąg niosący strop. Można ją zlikwidować ale konstruktor adaptujący budynek musi zaproponować inne rozwiązanie. Wentylacja w łazience jest zapewniona giętką rurą spiro, której wlot jest w stropie łazienki a wylot ponad dachem (kominek wentylacyjny). Kominek można doprojektować przewidując kanał spalinowy i wentylacyjny. Nie można także zapomnieć o doprowadzeniu powietrza do spalania z zewnątrz domu, najlepiej kanałem biegnącym w posadzce.

Katarzyna Góras

Witam Czy istnieje możliwość zlikwidowania ścianki w salonie (na tej ścianie, gdzie jest okno i szafki)? Jak rozwiązana jest kwestia wentylacji w łazience 5 m? Czy istnieje możkliwość zrobienia kominka?