Projekt domu Mahoń 3
- Dostępny w 24H
- Bezpłatna wysyłka
- Zwrot/wymiana 14 dni
- Drukuj kartę projektu
-
Dodaj do ulubionych
- Porównaj ulubione
Dane techniczne
- powierzchnia użytkowa 102.71 m²
- powierzchnia zabudowy 134.42 m²
- powierzchnia dachu 246.00 m²
- kubatura 550.00 m³
- wysokość 6.83 m
- EP 68.10 kWh/(m²rok)
Technologia i rodzaj zabudowy
| zabudowa: | jednorodzinny |
| ściany: | 2-warstwowe - YTONG 24 cm + styropian |
| stropy: | belki drewniane |
| dach: | blacha na rąbek stojący Ruukki Classic, kąt nachylenia 35° |
| ogrzewanie: | gazowe |
Rysunki szczegółowe
Rysunki zostaną przesłane na podany adres e-mail.
Adaptacja projektu
wraz z projektem zagospodarowania działki
W celu uzyskania pozwolenia na budowę należy dokonać adaptacji projektu do warunków miejscowych oraz uzupełnić go o projekt zagospodarowania działki.
Jeżeli jesteś zainteresowany adaptacją projektu w naszym biurze wyślij zapytanie.
Orientacyjne koszty budowy
Bezpłatny PAKIET DODATKÓW
Pobierz wycenę w 3 minuty
Budowa domu - bezpłatna wycena firmy Wolf Haus
Bezpłatna wycena poszczególnych etapów budowy



Opis do projektu Mahoń 3
Mahoń 3 to projekt domu parterowego o zwartej bryle przykrytej dwuspadowym dachem. Projekt świetnie sprawdzi się zarówno na wąskiej, jak i na płytkiej działce. Pomimo tradycyjnej bryły dom prezentuje się niezwykle nowocześnie. Budynek został zaprojektowany na planie prostokąta z dwuspadowym dachem z kalenicą prostopadłą do drogi. Projekt wyróżnia się zadaszonym tarasem, którego zadaszeniem jest wydłużony okap głównych połaci dachu, wspartych na drewnianej konstrukcji.
Prosta forma, nowoczesne wykończenie
Prosta forma budynku umożliwia swobodne kształtowanie wyglądu elewacji. Do projektu Mahoń 3 przygotowaliśmy dwie propozycje wykończenia elewacji. Tym, którzy chcą się wyróżniać zaproponowaliśmy odważną elewację, w której dominuje czerwona szalówka. Druga propozycja zawiera bardziej stonowaną kolorystykę. Na elewacji w miejscu szalówki pojawiły się płytki elewacyjne w odcieniach brązu. W obu przypadkach na dachu zastosowaliśmy blachę na rąbek w kolorze grafitowym, która jest spójna z kolorem stolarki. Drewniane elementy konstrukcyjne oraz drewniany taras ocieplają nowoczesny charakter domu.
Funkcjonalnie i wygodnie
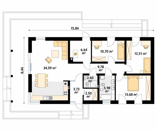
Układ funkcjonalny domu został podzielony na część dzienną i nocną. Część dzienna jest niezwykle przestronna i świetnie doświetlona dzięki wysokiemu sufitowi, który pojawił się w salonie oraz licznym przeszkleniom. Składa się na nią przestronny salon z jadalnią i otwarta kuchnia z dużą ilością blatu roboczego oraz wysoką zabudową. Otwarta przestrzeń pozwala również na wstawienie wyspy w kuchni. Przedłużeniem części dziennej może być przestrzeń wypoczynkowa na zadaszonym tarasie, który biegnie od wejścia głównego wzdłuż elewacji szczytowej i całej elewacji tylnej. Powoduje to, iż bezpośrednie wyjście na taras znajduje się nie tylko z salonu, ale również z dwóch mniejszych sypialni oraz z pomieszczenia gospodarczego z funkcja kotłowni. Część nocną w projekcie tworzą trzy wygodne sypialnie i dwie łazienki. Układ funkcjonalny dopełnia garderoba z wejściem z przedsionka oraz kotłownia na ogrzewanie gazowe z możliwością adaptacji na paliwo stałe.
Panie Andrzeju Pan zapłacił za nakład pracy jaki został włożony w powstanie projektu na zamówienie. W tym przypadku chodziło o modyfikację projektu Mahoń, na podstawie której powstała nowa wersja projektu. W ten sposób powstają kolejne wersje popularnych projektów: w oparciu o sugestie i pomysły naszych klientów, a czasami na podstawie zmian wprowadzanych na zamówienie.
Witam serdecznie. Jak sie panstwo domyslaja projekt mi sie bardzo podoba miedzy innymi dlatego, ze jest to moja indywidualna wizja projektu mahon. Szkoda tylko, ze ja za to zaplacilem ok. 5000zl a zeby miec cos innego. Widzac go w ogolnej ofercie w takiej cenie niestety pozostawia pewien niesmak. Pozdrawiam Andrzej