Projekt domu Legenda
- Dostępny w 5 dni
- Bezpłatna wysyłka
- Zwrot/wymiana 14 dni
- Drukuj kartę projektu
-
Dodaj do ulubionych
- Porównaj ulubione
PROJEKT W SPECJALNEJ CENIE
Prezentowany projekt na skutek ciągle zmieniających się warunków technicznych wymaga nieco więcej nakładu pracy przy adaptacji do działki. Polega to głównie na pogrubieniu izolacji cieplnej budynku oraz częściowym przeredagowaniu opisu. Projekt wciąż cieszy się zainteresowaniem dlatego jest dostępny w specjalnej cenie.
Dane techniczne
- powierzchnia użytkowa 133.20 m²
- powierzchnia garażu 19.20 m²
- powierzchnia zabudowy 139.10 m²
- powierzchnia dachu 250.00 m²
- kubatura 780.00 m³
- wysokość 7.82 m
- EP 139.54 kWh/(m²rok)
Technologia i rodzaj zabudowy
| zabudowa: | dwukondygnacyjny |
| ściany: | 3-warstwowe - pustak ceramiczny |
| stropy: | żelbetowe, wylewane |
| dach: | dachówka, kąt nachylenia 20° |
| ogrzewanie: | gazowe, olejowe |
Rysunki szczegółowe
Rysunki zostaną przesłane na podany adres e-mail.
Adaptacja projektu
wraz z projektem zagospodarowania działki
W celu uzyskania pozwolenia na budowę należy dokonać adaptacji projektu do warunków miejscowych oraz uzupełnić go o projekt zagospodarowania działki.
Jeżeli jesteś zainteresowany adaptacją projektu w naszym biurze wyślij zapytanie.
Orientacyjne koszty budowy
Bezpłatny PAKIET DODATKÓW
Pobierz wycenę w 3 minuty
Budowa domu - bezpłatna wycena firmy Wolf Haus
Bezpłatna wycena poszczególnych etapów budowy



Opis do projektu Legenda
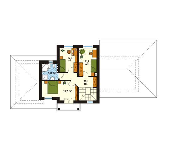
Dom jednorodzinny, parterowy, na fragmencie dwukondygnacyjny.Na piętrze zaprojektowano trzy sypialnie i łazienkę.Dom przeznaczony dla 4-osobowej rodziny.Charakterem zabudowy i architektury nawiązuje do willi rejonu śródziemnomorskiego.