Projekt domu Kruszyna 4
- Dostępny w 24H
- Bezpłatna wysyłka
- Zwrot/wymiana 14 dni
- Drukuj kartę projektu
-
Dodaj do ulubionych
- Porównaj ulubione
Dane techniczne
- powierzchnia użytkowa 93.03 m²
- powierzchnia zabudowy 77.02 m²
- powierzchnia dachu 134.97 m²
- kubatura 301.00 m³
- wysokość 8.86 m
- EP 26.92 kWh/(m²rok)
Technologia i rodzaj zabudowy
| zabudowa: | jednorodzinny z użytkowym poddaszem |
| ściany: | 2-warstwowe - beton komórkowy + styropian Termo Organika |
| stropy: | żelbetowe, wylewane |
| dach: | blachodachówka płaska modułowa Ruukki Hyygge, kąt nachylenia 45° |
| ogrzewanie: | pompa ciepła, podłogowe |
| stolarka: | okna dachowe marki Velux |
Rysunki szczegółowe
Rysunki zostaną przesłane na podany adres e-mail.
Adaptacja projektu
wraz z projektem zagospodarowania działki
W celu uzyskania pozwolenia na budowę należy dokonać adaptacji projektu do warunków miejscowych oraz uzupełnić go o projekt zagospodarowania działki.
Jeżeli jesteś zainteresowany adaptacją projektu w naszym biurze wyślij zapytanie.
Bądź pierwszą osobą, która zamówi kosztorys do projektu Kruszyna 4.
Zadzwoń: 577 007 206
Cena kosztorysu dla projektu Kruszyna 4 wynosi 500 zł.
Ten dodatkowy koszt z pewnością znacząco nie nadszarpnie budżetu inwestycji, a pozwoli precyzyjnie wycenić poszczególne etapy prac budowlanych oraz będzie przydatne w negocjacjach z wykonawcą. Kosztorys może być również podstawą do ubiegania się o kredyt hipoteczny. Narzędzie to pozwala stworzyć harmonogram prac ściśle powiązany z własnymi możliwościami finansowymi. Zaletą kosztorysu w wersji elektronicznej jest to, że pozwala na wprowadzanie pewnych zmian i dostosowanie kosztów do własnych potrzeb, daje również możliwość skorygowania cen materiałów i robocizny w zależności od miejsca budowy.
Kosztorys budowlany zawiera:- tabelę elementów, która przedstawia poszczególne etapy budowy wraz z ich kosztami,
- przedmiar, który obejmuje zestawienie wszystkich prac związanych z budową wraz z kosztami i ilościami,
- zestawienie materiałów potrzebnych do budowy,
- zestawienie robocizny, które obejmuje wynagrodzenie wszystkich robotników wraz z kosztami ich pracy,
- zestawienie sprzętu, które obejmuje wszystkie maszyny budowlane biorące udział przy budowie domu, wraz z kosztami ich wynajmu oraz czasu pracy.
Kosztorys budowlany uwzględnia wyłącznie część budowlaną robót – bez instalacji. Instalacje zostały uwzględnione jedynie wskaźnikowo w tabelach elementów zapisanych w formacie programu Excel.
Bezpłatny PAKIET DODATKÓW
Pobierz wycenę w 3 minuty
Budowa domu - bezpłatna wycena firmy Wolf Haus
Bezpłatna wycena poszczególnych etapów budowy



Opis do projektu Kruszyna 4
Kruszyna 4 to projekt domu parterowego z poddaszem użytkowym. Bryła budynku została rozplanowana na rzucie prostokąta oraz przykryta dachem dwuspadowym. Ściany zostały wykończone białym tynkiem oraz pionowymi deskami, a dach blachą na rąbek w kolorze ciemnoszarym.
Nowoczesne rozwiązania
Projekt Kruszyna 4 nawiązuje do tradycyjnych domów z dachem dwuspadowym, w nowoczesnym wydaniu. Zastosowanie nowatorskich rozwiązań w postaci zadaszenia nad wejściem, które przedłuża się i owija wokół domu, umożliwia zadaszenie tarasu w sposób dyskretny i nowoczesny. Dodatkowo dom dzięki zastosowaniu dużych przeszkleń na poddaszu w kształcie zblożonych do trapezu oraz interesujących materiałów elewacyjnych oraz wykończeniowych znacząco wyróżnia się pośród innych projektów domów o podobnych gabarytach.
Dopracowany układ funkcjonalny
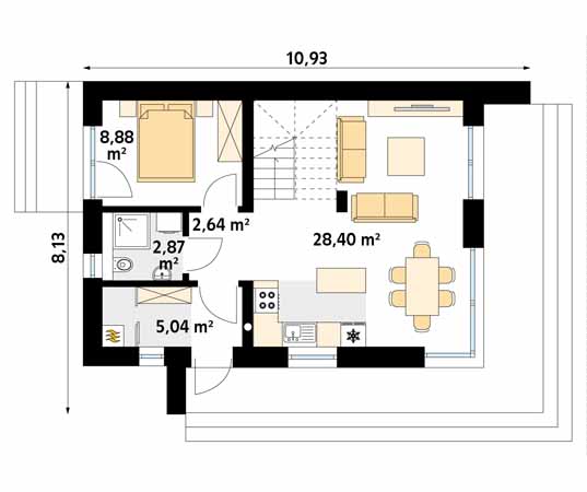
Zadaszone wejście do domu umożliwia komfortowy dostęp w każdych warunkach. Bezpośrednio za wiatrołapem znajdują się wejścia do łazienki z prysznicem, pokoju gościnnego oraz aneksu kuchennego połączonego z pokojem dziennym, duże przeszklenia oraz okno narożne wprowadzają dużą ilość światła dziennego powiększając zarazem przestrzeń. Schody na poddasze zostały usytuowane w środkowej części parteru. Na poddaszu znajdują się trzy sypialnie z dostępem na balkon oraz łazienka z wanną. Nad każdym z tych pokoi znajdują się okna dachowe, które dodatkowo doświetlają pomieszczenia
Okna dachowe marki Velux
Pomieszczenia na poddaszu mają wyjątkowy klimat i niewiele potrzeba, aby zyskały niepowtarzalny charakter. W projekcie KRUSZYNA 4 zostały zastosowane okna dachowe marki Velux. W swojej ofercie posiadają duży wybór produktów, dzięki czemu z łatwością można wybrać modele najbardziej pasujące do wnętrza domu i osobistych potrzeb mieszkańców. Okna dachowe spełniają jednak nie tylko funkcję dekoracyjną, ale również praktyczną. Energooszczędne, dwukomorowe okna GLL i GLU zapewniają doskonałe parametry izolacyjne i komfort użytkowania. Duża powierzchnia szyby zapewnia dobry dostęp światła i zyski ciepła z energii słonecznej w okresie grzewczym. Wszystkie okna dachowe marki Velux posiadają 4 najwyższą klasę szczelności.