Projekt domu Astron

Autor projektu arch. Maciej Matłowski
Projekt domu
Astron
11 549 zł
Kosztorys
-200
Dziennik
GRATIS !
  • Projekt na zapytanie
  • Bezpłatna wysyłka
  • Zwrot/wymiana 14 dni

Porozmawiaj o projekcie

wyślij pytanie

Dane techniczne

  • powierzchnia użytkowa 388.10 m²
  • powierzchnia garażu 47.60 m²
  • powierzchnia zabudowy 459.00 m²
  • powierzchnia dachu 865.00 m²
  • kubatura 2179.00 m³
  • wysokość 9.17 m
  • min. gabaryty działki 41.60 × 48.76 m
  • EP 92.15 kWh/(m²rok)

Technologia i rodzaj zabudowy

zabudowa: jednorodzinny z użytkowym poddaszem
ściany: 3-warstwowe - pustak ceramiczny
stropy: żelbetowe, wylewane
dach: dachówka ceramiczna, kąt nachylenia 38° i 30°
ogrzewanie: gazowe, pakiet "Kotłownia na paliwo stałe", olejowe

Parter

Projekt domu Astron - rzut parteru

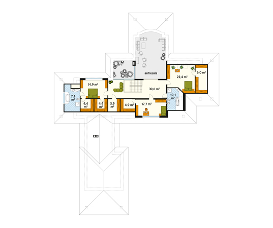
Poddasze

Projekt domu Astron - rzut poddasza

Usytuowanie na działce:

Projekt domu Astron - usytuowanie na działce
pobierz rzut 1:500
rysunki szczegółowe ikona

Rysunki szczegółowe

Jeśli chcesz otrzymać bezpłatne rysunki szczegółowe tego projektu, wypełnij formularz.
Rysunki zostaną przesłane na podany adres e-mail.
Jeśli jesteś naszym Partnerem i chcesz pobrać rysunki szczegółowe - kliknij tutaj »
Pobierz bezpłatnie
radaptacja projektu ikona

Adaptacja projektu
wraz z projektem zagospodarowania działki

W celu uzyskania pozwolenia na budowę należy dokonać adaptacji projektu do warunków miejscowych oraz uzupełnić go o projekt zagospodarowania działki.


Jeżeli jesteś zainteresowany adaptacją projektu w naszym biurze wyślij zapytanie.

Wyślij pytanie
koszty budowy ikona

Orientacyjne koszty budowy

Poziom cen netto: Sekocenbud I kw 2010, dostawcy, producenci
10%
74%
16%
stolarka okienna i drzwiowa
44 639 zł
stan surowy otwarty
(ściany konstrukcyjne i działowe, konstrukcja dachu z pokryciem)
332 729 zł
stan zerowy
(fundamenty i ściany fundamentowe)
73 887 zł
∑ =
stan surowy zamknięty
(bez instalacji)
451 255 zł
Pobierz szacunkowe koszty budowy
ZOBACZ ZESTAWIENIE MATERIAŁÓW

Bezpłatny PAKIET DODATKÓW

dodatek Rzut w skali 1:500
Rzut w skali 1:500
pobierz
dodatek Charakterystyka energetyczna
Charakterystyka energetyczna
dodatek Zgoda na zmiany
Zgoda na zmiany
dodatek Dziennik budowy
Dziennik budowy
dodatek Pakiet kotłownia na paliwo stałe
Pakiet kotłownia na paliwo stałe
dodatek BIOZ
BIOZ

Dodatki w DOBREJ CENIE

Zamów razem z projektem
dodatek Kosztorys budowlany
Kosztorys budowlany
1000
dodatek Dodatkowy egzemplarz projektu
Dodatkowy egzemplarz projektu
3465
dodatek Elektroniczna wersja projektu
Elektroniczna wersja projektu
1732
dodatek Schemat szamba
Schemat szamba
70zł 60
dodatek Schemat rekuperacji
Schemat rekuperacji
900
dodatek Pompa ciepła
Pompa ciepła
Na zapytanie
logo New House

Pobierz wycenę w 3 minuty

Bezpłatna wycena
logo Wolf Haus

Budowa domu - bezpłatna wycena firmy Wolf Haus

Zapraszamy Państwa do wypełnienia poniższego formularza. Dzięki niemu przygotujemy Państwu pełną ofertę na budowę wymarzonego domu.
Bezpłatna wycena

Bezpłatna wycena poszczególnych etapów budowy

System grzewczy
grafika Viessmann
wypełnij
Więźba dachowa
grafika Mitek
wypełnij
Zmiany w projekcie
grafika Mtmstyl
wypełnij

Opis do projektu Astron

Reprezentacyjny dom jednorodzinny.Prostota wnętrza oraz czysty układ funkcjonalny nie pozbawiają cech indywidualnych.

Inne wersje projektu Astron

Projekty podobne do projektu Astron

Komentarze o projekcie

  • + Dodaj zdjęcia
  • Chcę otrzymywać prywatne wiadomości
  • Realizując obowiązek Administratora określony w treści art. 13 Rozporządzenia Parlamentu Europejskiego i Rady (UE) 2016/679 z dnia 27 kwietnia 2016 r. w sprawie ochrony osób fizycznych w związku z przetwarzaniem danych osobowych i w sprawie swobodnego przepływu takich danych oraz uchylenia Dyrektywy 95/46/WE (ogólne rozporządzenie o ochronie danych, RODO) (Dz.Urz.UE.L Nr 119, str. 1, ze zm.), informuję iż: rozwiń