Projekt domu Aksamit 3
- Dostępny w 24H
- Bezpłatna wysyłka
- Zwrot/wymiana 14 dni
- Drukuj kartę projektu
-
Dodaj do ulubionych
- Porównaj ulubione
Dane techniczne
- powierzchnia użytkowa 156.42 m²
- powierzchnia garażu 33.72 m²
- powierzchnia zabudowy 243.40 m²
- powierzchnia dachu 387.24 m²
- kubatura 898.15 m³
- wysokość 6.33 m
- EP 22.45 kWh/(m²rok)
Technologia i rodzaj zabudowy
| zabudowa: | jednorodzinny |
| ściany: | 2-warstwowe - pustak ceramiczny + styropian Termo Organika |
| stropy: | System Stropowy TECHNOBETON |
| dach: | dachówka ceramiczna CREATON, kąt nachylenia 25° i 30° |
| ogrzewanie: | gazowe, na paliwo stałe |
Rysunki szczegółowe
Rysunki zostaną przesłane na podany adres e-mail.
Adaptacja projektu
wraz z projektem zagospodarowania działki
W celu uzyskania pozwolenia na budowę należy dokonać adaptacji projektu do warunków miejscowych oraz uzupełnić go o projekt zagospodarowania działki.
Jeżeli jesteś zainteresowany adaptacją projektu w naszym biurze wyślij zapytanie.
Orientacyjne koszty budowy
Bezpłatny PAKIET DODATKÓW
Pobierz wycenę w 3 minuty
Budowa domu - bezpłatna wycena firmy Wolf Haus
Bezpłatna wycena poszczególnych etapów budowy



Opis do projektu Aksamit 3
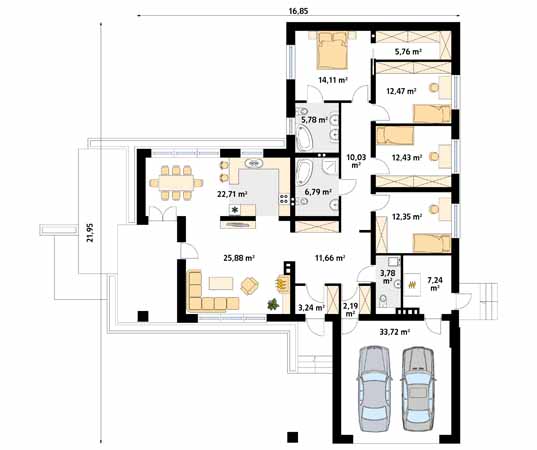
Aksamit 3 to projektu domu parterowego z wjazdem od południa. Układ funkcjonalny został dostosowany do potrzeb 5-osobowej rodziny. Efektowna rozłożysta bryła przykryta została wielospadowym dachem tworząc idealne połączenie minimalizmu i funkcjonalności. Część dzienną tworzą przestronny salon z kominkiem, otwarta kuchnia oraz jadalnia z bezpośrednim wyjściem na zadaszony taras. Część nocna to cztery wygodne sypialnie oraz wspólna łazienka. Jedna z sypialni posiada własną łazienkę i garderobę tworząc tzw. apartament gospodarzy. W części gospodarczej przewidziano dużą kotłownię z niezależnym wyjściem na zewnątrz oraz dwustanowiskowy garaż wpisany w bryłę budynku. Dom utrzymany został w nowoczesnym stylu. Biała elewacja pięknie kontrastuje z grafitowym dachem.
Grupa budujących - Budujemy Aksamity
Zachęcamy do dołączenia do grupy Budujemy Aksamity, którą założyliśmy na Facebooku. Grupa to idealne miejsce do wymiany doświadczeń, zamieszczania zdjęć i filmów z realizacji oraz opinii o projekcie. Dzięki grupie możesz bez problemu nawiązać kontakt z osobami, które budują dom wg projektu z serii Aksamit. Dołącz do grupy - czekamy na Ciebie :) W grupie zawsze raźniej.
Planujesz budowę domu z serii Aksamit, jesteś w trakcie budowy, a może już mieszkasz w którymś z Aksamitów? Dołącz do grupy! To idealne miejsce do wymiany doświadczeń, opinii, zamieszczania zdjęć i filmów z realizacji :) https://www.facebook.com/groups/1888997544702651/
Witam, Czy ktoś wybudował lub buduje dom Aksamit 3 ???
Witam czy ktoś buduje ten dom? :) jeśli tak proszę o wysłanie mi fotek z budowy z góry dziękuję i pozdrawiam :) mro-barbara@o2.pl
Właśnie przymierzam się do kupna projektu domu Aksamit 3, pod każdym względem spełnia on potrzeby mojej rodziny.
dobry projekt, ładny i funkcjonalny