Projekt Akant 3
- Projekt na zapytanie
- Bezpłatna wysyłka
- Zwrot/wymiana 14 dni
- Drukuj kartę projektu
-
Dodaj do ulubionych
- Porównaj ulubione
Z uwagi na konieczną aktualizację dokumentacji technicznej do WT2021 i Eurokodów prezentowane na stronie dane techniczne i ceny mogą ulec zmianie.
Dane techniczne
- powierzchnia użytkowa 1102.40 m²
- powierzchnia piwnicy 274.26 m²
- powierzchnia zabudowy 345.28 m²
- powierzchnia dachu 412.31 m²
- kubatura 5519.69 m³
- wysokość 14.35 m
Technologia i rodzaj zabudowy
| zabudowa: | zabudowa wielorodzinna |
| ściany: | 2-warstwowe - pustak ceramiczny + styropian |
| stropy: | żelbetowe, wylewane i gęstożebrowe |
| dach: | papa - dach płaski, (spadek około 2-3%) |
| ogrzewanie: | gazowe |
Rysunki szczegółowe
Rysunki zostaną przesłane na podany adres e-mail.
Adaptacja projektu
wraz z projektem zagospodarowania działki
W celu uzyskania pozwolenia na budowę należy dokonać adaptacji projektu do warunków miejscowych oraz uzupełnić go o projekt zagospodarowania działki.
Jeżeli jesteś zainteresowany adaptacją projektu w naszym biurze wyślij zapytanie.
Bądź pierwszą osobą, która zamówi kosztorys do projektu Akant 3.
Zadzwoń: 577 007 206
Ten dodatkowy koszt z pewnością znacząco nie nadszarpnie budżetu inwestycji, a pozwoli precyzyjnie wycenić poszczególne etapy prac budowlanych oraz będzie przydatne w negocjacjach z wykonawcą. Kosztorys może być również podstawą do ubiegania się o kredyt hipoteczny. Narzędzie to pozwala stworzyć harmonogram prac ściśle powiązany z własnymi możliwościami finansowymi. Zaletą kosztorysu w wersji elektronicznej jest to, że pozwala na wprowadzanie pewnych zmian i dostosowanie kosztów do własnych potrzeb, daje również możliwość skorygowania cen materiałów i robocizny w zależności od miejsca budowy.
Kosztorys budowlany zawiera:- tabelę elementów, która przedstawia poszczególne etapy budowy wraz z ich kosztami,
- przedmiar, który obejmuje zestawienie wszystkich prac związanych z budową wraz z kosztami i ilościami,
- zestawienie materiałów potrzebnych do budowy,
- zestawienie robocizny, które obejmuje wynagrodzenie wszystkich robotników wraz z kosztami ich pracy,
- zestawienie sprzętu, które obejmuje wszystkie maszyny budowlane biorące udział przy budowie domu, wraz z kosztami ich wynajmu oraz czasu pracy.
Kosztorys budowlany uwzględnia wyłącznie część budowlaną robót – bez instalacji. Instalacje zostały uwzględnione jedynie wskaźnikowo w tabelach elementów zapisanych w formacie programu Excel.
Budowa domu - bezpłatna wycena firmy Wolf Haus
Bezpłatna wycena poszczególnych etapów budowy



Opis do projektu Akant 3
Prosta, nowoczesna bryła
Akant 3 to prosty budynek wielorodzinny o nowoczesnym wyglądzie zewnętrznym. Oryginalna aranżacja elewacji sprawia, że budynek prezentuje się niezwykle efektownie. Nowoczesne detale architektoniczne oraz zastosowane materiały wykończeniowe podkreślają charakter prostej bryły budynku. Na elewacji wykorzystano naturalne materiały, dzięki którym budynek wpisuje się w aktualne trendy. Stonowane kolory elewacji pięknie współgrają z drewnianą szalówką oraz szklanymi balustradami. W budynku zaprojektowano łącznie 15 mieszkań, po cztery na trzech niższych kondygnacji oraz trzy mieszkania na kondygnacji najwyższej.
Funkcjonalne mieszkania z zadaszonym balkonem
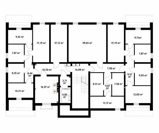
Akant 3 to projekt budynku wielorodzinnego o powierzchni ok. 1100 m2. Na 4 kondygnacjach nadziemnych zaprojektowano 15 mieszkań funkcjonalnych mieszkań, wśród których znajdują się 3 mieszkania 2-pokojowe oraz 12 mieszkań 3-pokojowych. Lokatorzy mają do wyboru niewielkie mieszkania, których powierzchnia nie przekracza 45 m2 oraz te większe o powierzchni nawet 103 m2. Każde mieszkanie posiada częściowo zadaszony narożny balkon oraz otwartą kuchnię w postaci aneksu. Projekt posiada podpiwniczenie. W piwnicy zaprojektowano różnej wielkości komórki lokatorskie. Najmniejsze komórki mają powierzchnię ok. 8 m2, największa prawie 40 m2. Układ funkcjonalny piwnicy dopełnia kotłownia oraz pomieszczenie socjalne.
Wartość dodana do projektu
Projektowaniem budynków wielorodzinnych zajmujemy się od lat. Wszystkie projekty to efekt pracy profesjonalistów, którzy w oparciu o wiedzę i doświadczenie tworzą przemyślane w każdym szczególe projekty. Każdy projekt powstaje w ścisłej współpracy z Inwestorem oraz przedstawicielami poszczególnych branż (konstruktor, instalator, elektryk). Każda inwestycja traktowana jest przez nas indywidualnie. Wprowadzamy zmiany w naszych projektach, jak również zapewniamy nadzór autorski na każdym etapie prac projektowych. Na życzenia klienta opracowujemy kosztorys inwestorski. W celach promocyjnych udostępniamy materiały graficzne.